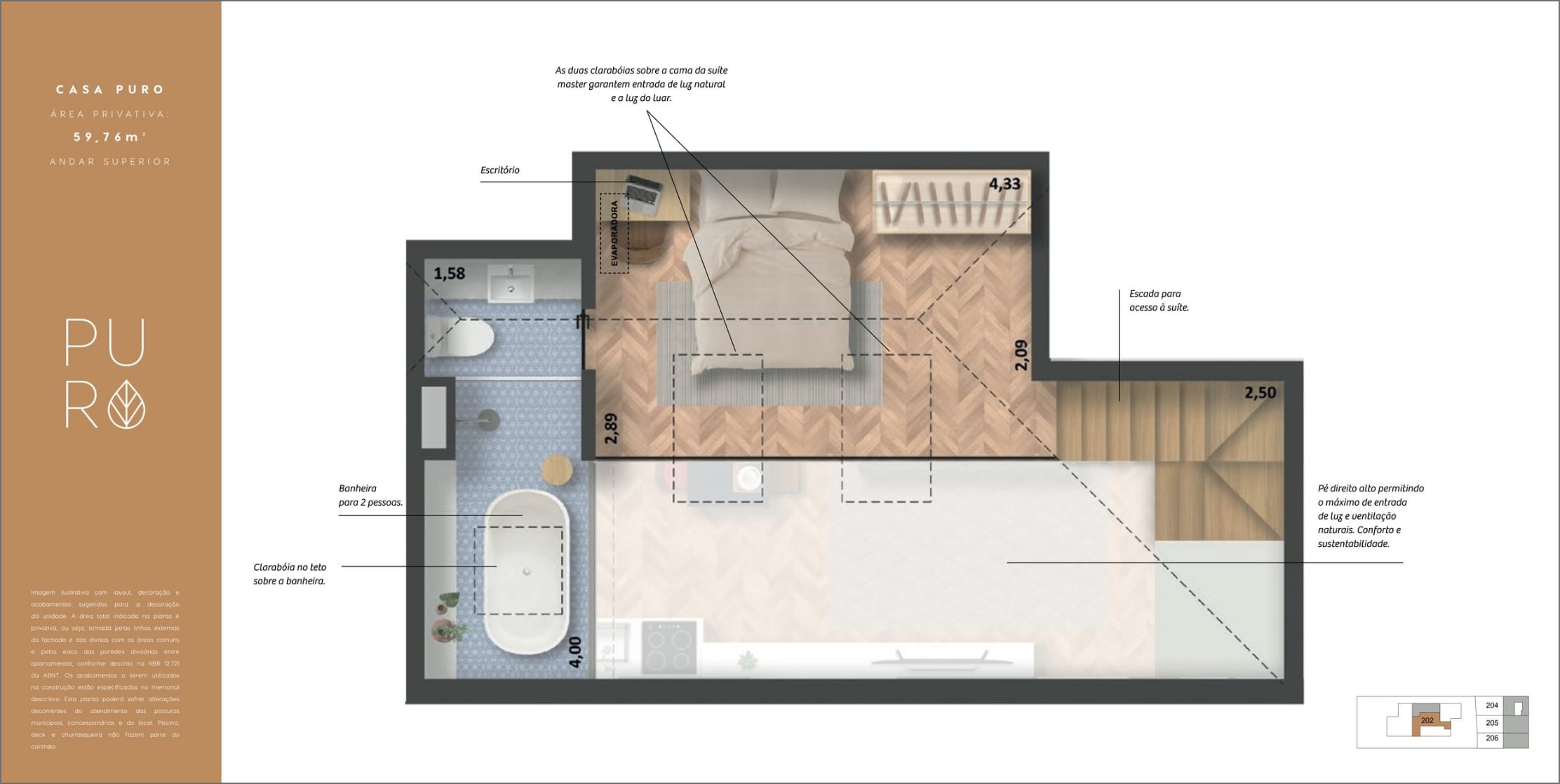
Puro
Lorem ipsum dolor sit amet, consectetur adipiscing elit. Ut elit tellus, luctus nec ullamcorper mattis, pulvinar dapibus leo.
Jardim Botânico
Rua Prof.Saldanha, 142
Jardim Botânico – Rio de Janeiro – RJ
Rua Prof.Saldanha, 142
Jardim Botânico – Rio de Janeiro – RJ
Terreno
Área – 480m²
Área – 480m²
Casa Neocolonial
Nos anos 70 e 80, a maioria das mansões da Lagoa foram postas abaixo e substituídas por unidades multifamiliares. A casa Neocolonial da Rua Prof. Saldanha 142, antes conhecida como uma clínica, teria este destino, se não fosse seu tombamento em 1995 pela Municipalidade.
Nesse momento, o Brix Fundo de Investimento Imobiliário veio injetar novo ânimo nessa histórica construção. Estabelecendo assim, um uso moderno para um solar do passado. Serão seis unidades na casa preservada e outras seis em um projeto de arquitetura moderno que mantem os traços da edificação original.
Nesse momento, o Brix Fundo de Investimento Imobiliário veio injetar novo ânimo nessa histórica construção. Estabelecendo assim, um uso moderno para um solar do passado. Serão seis unidades na casa preservada e outras seis em um projeto de arquitetura moderno que mantem os traços da edificação original.
Ficha técnica
Plantas
Unidades
12 unidades
Tipologia
1 e 2 quartos
Pavimentos
2 pavimentos + Cobertura
Ficha técnica
Projeto
A A+ Arquitetura assina o projeto do Puro, trazendo uma abordagem contemporânea que valoriza formas essenciais, linhas equilibradas e uma integração harmoniosa com o entorno. O resultado é uma arquitetura clara, elegante e funcional, pensada para acompanhar o ritmo atual da vida urbana.
Os interiores foram desenvolvidos pela Morolli Arquitetura, que traduziu a identidade do Puro em ambientes acolhedores e sofisticados. A escolha criteriosa de materiais e detalhes reforça a atmosfera do projeto, criando espaços que unem bem-estar, estética e praticidade no dia a dia.
Os interiores foram desenvolvidos pela Morolli Arquitetura, que traduziu a identidade do Puro em ambientes acolhedores e sofisticados. A escolha criteriosa de materiais e detalhes reforça a atmosfera do projeto, criando espaços que unem bem-estar, estética e praticidade no dia a dia.



Nos anos 70 e 80, a maioria das mansões da Lagoa foram postas abaixo e substituídas por unidades multifamiliares. A casa Neocolonial da Rua Prof. Saldanha 142, antes conhecida como uma clínica, teria este destino, se não fosse seu tombamento em 1995 pela Municipalidade. Nesse momento, o Brix Fundo de Investimento Imobiliário veio injetar novo ânimo nessa histórica construção. Estabelecendo assim, um uso moderno para um solar do passado. Serão seis unidades na casa preservada e outras seis em um projeto de arquitetura moderno que mantem os traços da edificação original.
Endereço:
Rua Prof.Saldanha, 142
Jardim Botânico – Rio de Janeiro – RJ
Jardim Botânico – Rio de Janeiro – RJ
Pavimentos:
2 pavimentos + Cobertura
Unidades:
12 unidades
Terreno:
Área – 480m²
Tipologia:
1 e 2 quartos
Projetos:
Arquitetura

Interiores
































